Land Registry Title Plans
-
Basement Flat, Tunbridge Wells
Basement flat in Edwardian House. Slight sagging in...
-
10 Year old Detached in Tunbridge Wells
This property was only 10 years old but had major...
-
3 bed semi, Tonbridge
1930's semi detached property. Only one downpipe provided...
-
3 bed semi, Tonbridge
1930's 3 bed semi semi detached house. Japanese Knotweed was observed...
Lease Plans
-
Mid terrace, Faversham
A Gas explosion necessitated a new house to be infilled...
-
Brick Barn conversion, East Sussex
Large brick barn conversion with extensions. Woodworm noted...
-
Detached Extended Cottage in Ide Hill
Detached 1860 cottage with two 60's Extensions. Weak floor joists...
-
200 Year old detached Cottages, Wadhurst
1800 Detached Cottage, part timber framed. Broken roof purlin ...
-
A Coach House
1800 Former Coach House Roof slate covering issues...
A
-
1920's Detached and Extended House
1920's Detached House with Extensions and Disabled Lift Shaft...
-
Extended Old Lodge Cottage
Detached 1920's Property with 5 Extensions, Solar and other...
Measured Plans
-
Offices :
These offices arranged over two floors plus entrance hall...
-
Attached grounds of 2 acres
Our client was selling about half of their large 2 acre garden...
-
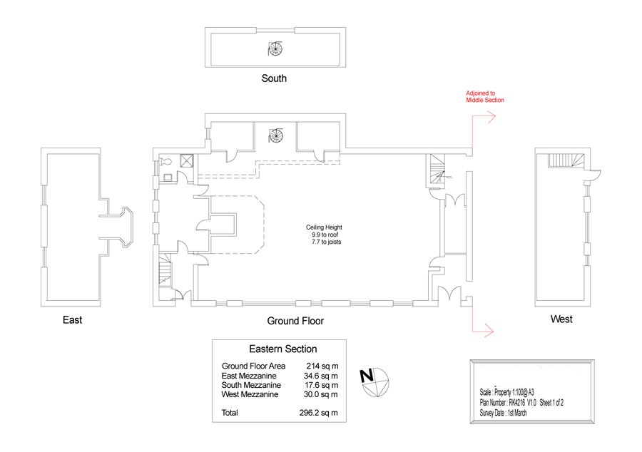
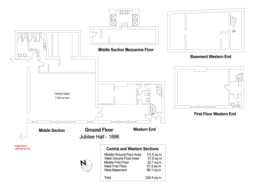
Memorial Hall
Our client was letting out...
-
Church
This is an old church which had been deconsecrated and was...
-
Woodland
8 plans were produced for this instruction as sitting tenants...
-
Mid Terrace House
A simple requirement on the face of it. A path to make a...
